Innensanierung Studierendenwohnheime, Schwerzstraße in Stuttgart
- Entwurf:WOLFF GRUPPE GmbH
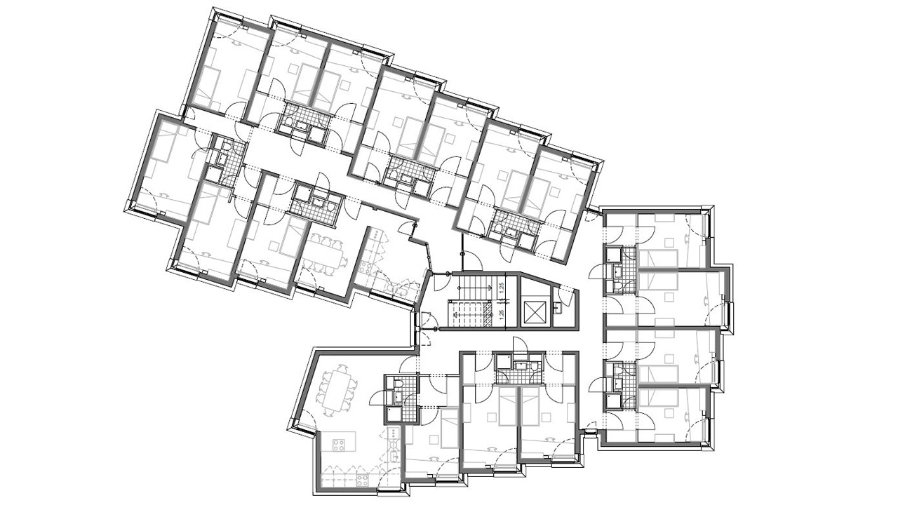
- BGF:7.262 m², insgesamt 228 Zimmer
- Leistungen:Objektplanung HOAI LPH 1 - 8
- Fertigstellung:2023
- Bauherr:Studierendenwerk Tübingen-Hohenheim
Projektbeschreibung
Im Auftrag des Studierendenwerks Tübingen-Hohenheim verantwortete die WOLFF GRUPPE die Objektplanung für die Innensanierung der Studierendenwohnheime in der Schwerzstraße 2 und 3. Zusätzlich wurden die Fernleitungen, sowie die Heizzentrale im benachbarten Gebäude Schwerzstraße 1 erneuert.
Die vorhandenen Gebäude im Stuttgarter Stadtteil Hohenheim wurden Anfang der 1970er Jahre erbaut. Die Fassade wurde im Jahr 2007 erneuert.
Die Sanierung erfolgte in zwei Bauabschnitten. Die Sanierung des ersten Gebäudeabschnitts erfolgte zu Beginn des Sommersemesters 2022. Der andere Bauabschnitt blieb bis zur Fertigstellung des ersten Abschnitts vermietet.
Sobald der erste Bauabschnitt wieder genutzt werden konnte, erfolgte der Umzug der Studierenden in den fertiggestellten Teil, sodass der zweite Bauabschnitt saniert werden kann. Die Fertigstellung des zweiten Bauabschnitts erfolgte so, dass die Neuvermietung der insgesamt 228 Zimmer zu Beginn des Wintersemesters 2023 sichergestellt wurde.
Die WOLFF GRUPPE GmbH vereint die PLAN FORWARD GmbH sowie die W+P Gesellschaft für Projektrealisierung mbH und die ARIQQA GmbH gesellschaftsrechtlich im Wege der Verschmelzung (§§ 2, 20 UmwG) unter ihrem starken Dach. Die bisherigen Unternehmen werden mit ihren Tätigkeitsbereichen in der WOLFF GRUPPE GmbH in den Geschäftsbereichen PLANEN, STEUERN und BERATEN vollumfänglich fortgeführt.



